COMPACT-Fertigelemente – ausgereifte Technik für schnelle und einfache Montage

Lamellentypen
SUPER 80 AT / SUPER 80 AT WF
Lamelle: 80 mm breit, 0,45 mm stark, konkav-konvex gewölbt, beidseitig längsgebördelt, aus speziallegiertem, mit lichtechtem Lack im Spezialverfahren korrosionsbeständig einbrennlackiertem Aluminium. Die Lamellen gewährleisten in geöffneter Stellung einen schönen Durchblick durch den Lamellenpanzer.
SUPER 80 Flach
Lamelle: 80 mm breit, 0,45mm stark, konkav-konvex gewölbt, ungebördelt, aus speziallegiertem, mit lichtechtem Lack im Spezialverfahren korrosionsbeständig einbrennlackiertem Aluminium. Die breiten, flexiblen und vor allem extrem flachen Lamellen ermöglichen eine elegante Beschattung mit großem Durchblick auf die Außenwelt bei kleinstem Platzbedarf.
SUPER 60
Lamelle: 60 mm breit, Außenraffstore integriert in Sichtblende (L-Blende) 2 mm. Mit Seitendeckeln ausgeführt, Lamellen 60/80 mm, konkav
konvex rollgeformt, an beiden Längsrändern gebördelt. Lamellenfarbe laut Farbfächer. Oberschiene 57 x 51 mm
verzinkt. Blende, Führungsschiene und Endschiene in den Farben 7016m, 9006m, 9007m, 9016m. Antrieb nur mit Motor
inkl. ca. 3m Kabel.
Zelos 73 / Zelos 90 / SIA 90
Verbundraffstore, Lamellen 73 mm (Aufpreis) oder 90 mm, Z-förmig bzw. S-förmig profiliert, beidseitig gebördelt, inkl.
Dichtungslippe. Außenraffstore integriert in Sichtblende (L-Blende) 2 mm. Mit Seitendeckeln ausgeführt, Lamellenfarben
laut Farbfächer. Lamellen mittels Kevlar verstärkter Lamellentragverbindung und Chromstahlclips miteinander
verbunden. Aufzugband 6 mm breit. Lamellenwendung 90°, Senken der Store in geschlossener Lamellenstellung.
Oberschiene 57 x 51 mm verzinkt. Blende, Führungsschiene und Endschiene in den Farben 7016m, 9006m, 9007m, 9016m.
Antrieb nur mit Motor inkl. ca. 3m Kabel.
Technische Vorbemerkungen
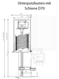
Compact Raffstore z.B. CZ90UK110
C Compact
Z Lamellenform Z90, S80
90 Lamellenbreite 90 oder 80mm
UK UK – Unterputzkasten, SK - Sichtkasten
110 Tiefe der Führungsschiene (70,90,100 und 110mm)
Blende - gekantete Ausführung
Blende aus gekantetem Aluminium, 2 mm stark, Blendenhöhe wahlweise 195, 235, 265, 305, 345 oder 385 mm.
Blende mit rückseitigen Aufsteckprofil entsprechend der Führungsschienentiefe, optional mit oder ohne Dämmung, Blendentiefe Unterputz 130mm, Blendentiefe bei Sichtkasten 140mm, vorne Aufsteckprofil mit Tiefe 19mm für die Anbringung eines Putzträgers
Die maximale Einzellänge ohne Stoßverbindung beträgt 4000 mm.
Zelos 90 Verbund-Rafflamellenstore
Verbundrafflamellenstore mit Z-förmig randgebördelten Lamellen und eingewalzter
Dichtungslippe. Seitliche Schienenführung aus Aluminiumprofilen mit Kunststoffeinlagen
zur Geräuschdämmung. Lamellen wechselseitig mit Führungsbolzen geführt.
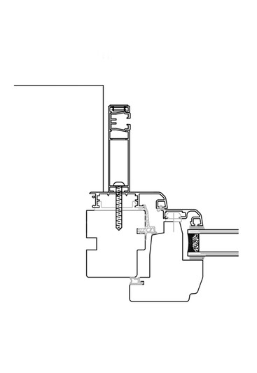
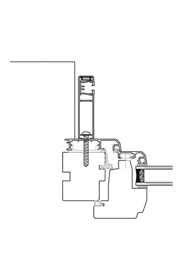
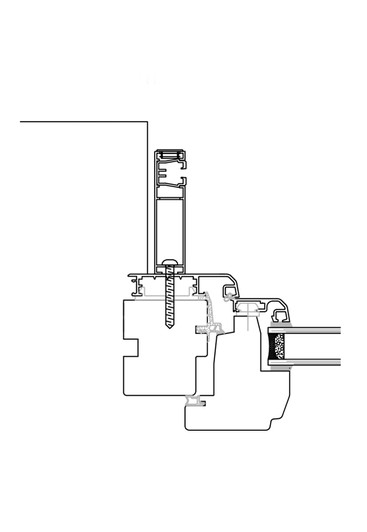
Oberkasten
Sendzimirverzinktes Stahlblech, 57 mm breit, 51 mm hoch, 0,75 mm stark, rollgeformt,
Aufzugswelle aus Metall, elektrolytisch verzinkt. Lagerböcke mit Wende- und
Aufzugsvorrichtung aus Kunststoff. Montageträger aus Metall für Decken- oder
Wandmontage.
Unterschiene
Stranggepresstes Aluminiumprofil, 90 mm breit, Farbe nach Wahl pulverbeschichtet
oder eloxiert.
Schienenführung: Endkappen aus Polyamid mit Kippsicherung sowie Teleskopgleiter
zur Aufnahme der Toleranzen.
Seilführung: diese wird durch zusätzliche Bohrungen in die Unterschiene geführt, die
geräuschdämmenden Gummitüllen ausgekleidet ist.
Mechanik/Aufzugssystem
Wendung der Lamellen um ca. 90° Grad durch eingebaute Wenderolle im Lagerbock.
Eine eingebaute Mechanik verhindert, dass sich der Behang durch Windeinwirkung
verstellen kann. UV beständiges, thermofixiertes Texband aus witterungsbeständigem
Material, 6 mm breit, Reißfestigkeit 600 N, Farbe grau.
Lamellenbehang
Lamellen 90 mm breit, ca. 0,45 mm stark, Z-förmig profiliert, beidseitig gebördelt, aus
speziallegiertem, mit lichtechtem Lack im Spezialverfahren korrosionsbeständig einbrennlackiertem
Aluminium. Auf der äußeren Seite der Lamelle ist eine schalldämmende
Dichtungslippe (Keder - Polyaramidfaser) eingewalzt. Zum Schutz des Aufzugsbandes
sind die Aufzugsbandlöcher gebördelt. Lamellenfarbe nach Wahl aus
der Kollektion des Bieters.
Lamellentragverbindung
Lamellentragband aus Kunststofffaser, grau, witterungsbeständig; mit eingewebter
Aramid-Faser, welche das Schrumpfen des Tragbandes verhindert. Aufgespritzte
Kugelverbindungsglieder werden in die im Bördelrand der Lamellen verankerten
Chromstahlclips montiert.
Seitliche Führung - Führungsschiene
Führungsbolzen aus Ultramid, mit den Lamellen verbunden, ab der dritten Lamelle
von unten wechselseitig genippelt. geschlossen Führungsschiene Tiefe 95, 115, 125 und 135mm;
2teilig mit Abdeckleiste vorne – keine Bohrlöcher sichtbar; mit Kunststoffeinlage,
für geräuscharmes Gleiten des Behanges. RAL-Farbe der Aluminiumteile nach Wahl.
Im unteren Bereich der Führungsschienen ist ein Endstopper eingebaut, der das
Herauslaufen des Behanges verhindert.
Seitliche Führung Spannseil
Beidseitig weißt die Lamelle für das kunststoffummantelte Führungsseil randgebördelte,
ovale Ausstanzungen auf. Diese Führung der Lamellen erfolgt beiderseits
mittels kunststoffummanteltem Niro-Spannseil. Befestigung mittels stabilem Halter
und Aluminium-Seilspanntopf zur Aufnahme der rostfreien Spannfeder und des Befestigungssystems.
Im Bereich der Seilführung ist das vordere Bördelauge sowie der Lamellenkeder
ausgestanzt, um eine optimalen Lamellenschluss zu gewährleisten.
Option Schienen-/Spannseilführung
Diese Ausführung kann beispielsweise bei Fenstern mit Nur-Glasecken eingesetzt
werden. Zur Mauerleibung werden Führungsschienen eingebaut, beim Glasstoß
könne Seilführungen verwendet werden.
Option TLT - Tageslichttransport
Der Behang ist in zwei Zonen geteilt:
- oberes Drittel: Lamellen 40 Grad geneigt
- untere zwei Drittel: Lamellen ca. 10 Grad geneigt
Die Jalousie hat vier Stellungen:
- Arbeitsstellung 10/40 Grad
- gesamte Store geschlossen
- gesamter Store offen
- Store im Paket hochgezogen
Die Option TLT gelangt nur dann zur Ausführung, wenn sie in der Position gefordert
wird.
Windwiderstandklasse:
nach DIN EN 13659
COMPACT-Elemente mit Insektenschutz
Als ideale Kombination kann jedes COMPACT-Raffstoren-Element mit integriertem Insektenrollo RO5/2 oder RO5/9 ausgestattet werden.
Eine Aluminiumkassette schützt das Gewebe und unterstützt die stranggepresste Aufwickelwelle.
Das Gewebe wird seitlich in einer Führungsschiene geführt.
Die Endleiste wird mit einer Bürstendichtung zum Fenster abgedichtet.
Bei der Kombination COMPACT-Elemente und Insektenschutz ist darauf zu achten,
dass dies nur mit der Führungsschiene D110 und Aufsteckprofil UP40 möglich ist.
Rollo max. 1600x2400
Nehmen Sie Kontakt auf und fordern Sie ein unverbindliches Angebot an!
Exklusivfarben
Standardfarben











Lichtregulierung Raffstoren
Optimaler Schutz gegen Sonnenwärme und unangenehme Lichtstrahlen:
Aus störender, greller Strahlung wird durch die stufenlos regulierbaren Lamellen angenehmes, diffuses Licht, das durch Reflexion nach oben besonders weit ins Rauminnere geleitet wird. Option: Arbeitsstellung verhindert die Dunkelphasen beim Absenken der Storen.

Lichtregulierung mit 90° geöffneten Lamellen:
Optimale Raumausleuchtung durch natürliches Licht im Innenraum.

Lichtregulierung mit 45° geöffneten Lamellen:
Die ideale Lamellenstellung bei tiefem Sonnenstand, ausreichende Beleuchtung der Räume mit Tageslicht.

Bei geschlossener Lamellenstellung:
Keine Einblicke von außen möglich. Zusätzliche Wärmedämmung
Tageslichttransport (TLT)
Der Lamellenbehang wird durch eine spezielle Technik in 2 Zonen geteilt. Im oberen Teil werden die Lamellen waagrecht bis leicht geneigt positioniert, im unteren Teil nahezu geschlossen. So ergibt sich eine blendfreie Zone im Arbeitsbereich. Durch die geöffnete Lamellenstellung oben wird das natürliche Licht über die Raumdecke nach Innen gelenkt. Die optimalen Belichtungsverhältnisse sind somit speziell bei hellen Lamellen geschaffen. Auf Wunsch kann der gesamte Lamellenbehang geschlossen werden.
Arbeitsstellung
Typenbezeichnungen:
- Super-80-AT UF/A, Super-80-AT SF/A, Super-80-AT WF/A
- Super-60/A
- Super-80F/A
Alle drei Ausstattungsvarianten können mit einer ca. 45° geneigten Arbeitsstellung geführt werden. Diese Option gewährleistet, dass im Automatikbetrieb die Räume nicht kurzfristig abgedunkelt werden. Ein komplettes Schließen in der unteren Endstellung ist möglich.
Minimale und maximale Storenmaße
| Höhe | Breite | Fläche |
|---|---|---|
| min. 400 mm | min. 600 mm | pro Storenpanzer 12 m2 |
| max. 4000 mm | max. 3500 mm | max. 20 m2 bei gekoppelten Anlagen mit Motorantrieb |
Platzbedarf im Sturz für Raffstoren-COMPACT-Elemente
| ZELOS 73 | ZELOS 90 SIA 90 | SUPER 80 AT | SUPER 60 | SUPER 80 FLACH | ||||||
|---|---|---|---|---|---|---|---|---|---|---|
| Blendenhöhe | GH | HL | GH | HL | GH | HL | GH | HL | GH | HL |
| 195 | 1000 | 805 | 1200 | 1005 | 1600 | 1405 | 1400 | 1205 | 2400 | 2205 |
| 235 | 1600 | 1365 | 2000 | 1765 | 2200 | 1970 | 2000 | 1765 | 3600 | 3365 |
| 265 | 2000 | 1735 | 2400 | 2135 | 2800 | 2535 | 2400 | 2135 | 4000 | 3735 |
| 305 | 2600 | 2295 | 3000 | 2695 | 3600 | 3295 | 3000 | 2695 | - | - |
| 345 | 3000 | 2655 | 3600 | 3255 | 4000 | 3655 | 3600 | 3255 | - | - |
| 385 | 3400 | 3030 | 4000 | 3630 | - | - | 4000 | 3630 | - | - |
GH = Gesamte Höhe: Angabe in mm.
HL = Höhe im Licht: Angabe in mm.
Antrieb und Steuerung, Kabelausgänge
COMPACT-Elemente sind standardmäßig mit Motorantrieb.
Heben, Senken und Verstellen der Lamellen um 180 Grad durch Motorbedienung. Kompakter 230V Antrieb, zum mittigen Einbau in die Kopfschiene, Robust, geräuscharm, wartungsfrei, kurze Einbaulänge, schnelle und sichere Befestigung mit Halteklammern, einfache und zuverlässige Endlageneinstellung mit hervorragender wiederholt genauer Abschaltung (HTM, WT) Ausführungen: Jeweils als 6 Nm, 10 Nm und 18 Nm Motor verfügbar.
Anschlusswerte für Motorantrieb
Einphasenwechselstrom 230 V/50 Hz, je nach Motortyp 0,57-0,90 A bzw. 125-190 W.
Achtung: Nach einer Schaltstelle dürfen max. 3 Motoren parallel betrieben werden.
Hinweis: Schalter, Taster (Lichtschalter) oder Schaltungen die gleichzeitig einen Auf- und Abbefehl ermöglichen, dürfen nicht angeschlossen werden! Bei Drehrichtungsänderung muss der Antrieb mindestens 500 ms spannungslos sein! Verwenden sie immer Originalschalter.

































