SUPER 80 AT - Raffstoren mit Spitzentechnologie

Produktdetails
Die 80 mm breite, längsgebördelte Lamelle gewährleistet einen schönen Durchblick durch den Lamellenbehang in geöffneter Stellung. Hohe Stabilität sorgt für Dauerhaftigkeit und Funktionalität. Optional erhältlich mit Geräuschdämmlippe im äußeren Bördelauge.
Mit den formschönen Abdeck-Kästen aus dem dazugehörigen KOSMOS Systemblenden-Programm ist der Schutz des hochgezogenen Lamellenpaketes perfekt gewährleistet.
Bei jeder 5. Lamelle ist der Quersteg der Leiterkordel mit der Lamelle fixiert. Die Leiterkordel mit integriertem Aramidfaden ist schrumpf- und dehnungsarm und ermöglicht eine exakte Schlaufenbildung und ein gleichmäßig gestapeltes Lamellenpaket.
Typenübersicht SUPER 80 AT UF
Schienenführung
Bei dieser Ausführung werden die Lamellen in Schienen geführt. Es können alle KOSMOS Führungsschienensysteme verwendet werden und die SUPER 80 AT UF eignet sich hervorragend für normale Belastungen. Es können Standardhalter bis 110 mm Ausladung eingesetzt werden. Optional kann diese Type mit Arbeitsstellung oder Tageslichttransport (TLT) ausgestattet werden. Die Wendung der Lamelle ist mit 90° oder 180° möglich.
Typenübersicht SUPER 80 AT SF
Seilführung
Bei diesem Modell werden die Lamellen mit einem kunststoffummantelten Niro-Seil, ø 2,5mm, geführt. Die SUPER 80 AT SF wird speziell bei Glasfassaden oder Nurglasecken eingesetzt, wo Führungsschienen aus optischen Gründen nicht gewünscht werden.
Optional kann diese Store mit Tageslichttransport (TLT) ausgestattet werden. Die Wendung der Lamelle ist mit 90° oder 180°möglich. Die Windstabilität bei der SUPER 80 AT SF ist bei einer Größe von 2x4 m max. 49 km/h. Bei stark windexponierten Lagen empfehlen wir die Ausführung SUPER 80 AT WF „windfest“.
Typenübersicht SUPER 80 AT WF
Windfest bis 90 km/h
Bei dieser speziellen Konstruktion werden die Lamellen mit einem kunststoffummantelten Niro-Seil, ø 2,5mm und mit Führungsschienen (nur FS-System 40) geführt. Der Quersteg der Leiterkorderl ist bei dieser Ausführung bei jeder Lamelle serienmäßig fixiert. Das macht die SUPER 80 AT WF windfest und der Einsatzbereich umfasst Bürogebäude, Großprojekte bis hin zum Wohnbau in stark windexponierten Lagen. Optional kann dieses Modell mit Tageslichttransport (TLT) ausgestattet werden. Die Wendung der Lamelle ist bis 90° möglich.
Überzeugende Argumente
- Lichtregulierung sorgt für angenehme Raumatmosphäre
- Sichtschutz - Sonnenschutz
- extreme Witterungsbeständigkeit
- Einbruchsschutz
- Tageslichttransport (TLT) oder Arbeitsstellung
- ansprechende Optik
- qualitativ hochwertige Technologie
- einfacher Einbau
- Hohe Stabilität
- windfeste Anlage bis 90 km/h
Nehmen Sie Kontakt auf und fordern Sie ein unverbindliches Angebot an!
Vergleich
| Lamelle 80mm randgebörtelt | SUPER 80 AT SF Seil | SUPER 80 AT UF Schiene | SUPER 80 AT WF Windfest |
|---|---|---|---|
| Windstabilität nach CE-Norm (Größenabhängig lt. CE 13659) | bis max. 60 km/h | bis max. 70 km/h | bis 90 km/h |
| Seitenführung | Niro-Seil Ø 2,5 mm | ALU-Führungsschiene alle Systeme | ALU-Führungsschiene (nur System 40) +Niro-Seil Ø2,5 mm |
| Lamellenführung | im Bördelloch | Polyamidzapfen wechselseitig in FS | im Bördelloch + Polyamidzapfen wechselseitig in FS |
| Stegleiterfixierung | jede 5. Lamelle | jede 5. Lamelle | jede Lamelle |
| Geräuschdämmlippe | möglich | möglich | möglich |
| Unterschiene ALU | mit Polyamidkappe | mit Polyamidkappe + Teleskopführung | mit Polyamidkappe + Teleskopführung + Seilführung |
| TLT-Option | möglich | möglich | möglich |
| Arbeitsstellung - Option | möglich | möglich | möglich |
| Max. Breite | 4500 mm | 4500 mm | 3000 mm |
| Max. Höhe | 4000 mm | 4000 mm | 3600 mm |
| Max. Fläche in m2 | 9 m² | 9 m² | 8 m² |
| Bedienung Kurbel / Motor | Kurbel oder Motor | Kurbel oder Motor | Motor |
| Ausführung Nurglasecke | ja | links oder rechts SF mit FS kombinierbar | ja,beidseitig mit SF und FS kombiniert |
| Wendung der Lamellen in Grad | 90° / 180° | 90° / 180° | 90° |
Exklusivfarben
Standardfarben











Lichtregulierung Raffstoren
Optimaler Schutz gegen Sonnenwärme und unangenehme Lichtstrahlen:
Aus störender, greller Strahlung wird durch die stufenlos regulierbaren Lamellen angenehmes, diffuses Licht, das durch Reflexion nach oben besonders weit ins Rauminnere geleitet wird. Option: Arbeitsstellung verhindert die Dunkelphasen beim Absenken der Storen.

Lichtregulierung mit 90° geöffneten Lamellen:
Optimale Raumausleuchtung durch natürliches Licht im Innenraum.

Lichtregulierung mit 45° geöffneten Lamellen:
Die ideale Lamellenstellung bei tiefem Sonnenstand, ausreichende Beleuchtung der Räume mit Tageslicht.

Bei geschlossener Lamellenstellung:
Keine Einblicke von außen möglich. Zusätzliche Wärmedämmung
Tageslichttransport (TLT)
Der Lamellenbehang wird durch eine spezielle Technik in 2 Zonen geteilt. Im oberen Teil werden die Lamellen waagrecht bis leicht geneigt positioniert, im unteren Teil nahezu geschlossen. So ergibt sich eine blendfreie Zone im Arbeitsbereich. Durch die geöffnete Lamellenstellung oben wird das natürliche Licht über die Raumdecke nach Innen gelenkt. Die optimalen Belichtungsverhältnisse sind somit speziell bei hellen Lamellen geschaffen. Auf Wunsch kann der gesamte Lamellenbehang geschlossen werden.
Arbeitsstellung
Typenbezeichnungen:
- Super-80-AT UF/A, Super-80-AT SF/A, Super-80-AT WF/A
- Super-60/A
- Super-80F/A
Alle drei Ausstattungsvarianten können mit einer ca. 45° geneigten Arbeitsstellung geführt werden. Diese Option gewährleistet, dass im Automatikbetrieb die Räume nicht kurzfristig abgedunkelt werden. Ein komplettes Schließen in der unteren Endstellung ist möglich.
Pakethöhen


GH = HL + HS (Höhe der Storenanlage)
| Höhe: min. 400 mm |
| Höhe: max. 4000 mm |
BK = Breite Konstruktion (Storenbreite)
| min. 400 mm Gelenkkurbel |
| min. 540 mm Motorantrieb |
| max. 4500 mm |
Ausmaß (maximale Storenfläche)
| max. 9 m² bei Einzelstoren |
| max. 20 m² bei gekoppelten Anlagen mit Motorantrieb |
| Höhe: min. 400 mm |
| Höhe: max. 3600 mm |
| Breite: min. 700 mm |
| Breite: max 3000 mm |
| Fläche: max. 8 m² bei Einzelstoren |
| Fläche: max. 18 m² bei gekoppelten Anlagen |
Die Ausführung SUPER 80 AT/WF ist nur mit Motorantrieb möglich!
Anschlusswerte für Motorantrieb
Einphasenwechselstrom 230 V/50 Hz, je nach Motortyp 0,57-0,90 A bzw. 125-190 W.
Hinweis: Schalter, Taster (Lichtschalter) oder Schaltungen die gleichzeitig einen Auf- und Ab-Befehl ermöglichen, dürfen nicht angeschlossen werden!
Bei Drehrichtungsänderung muss der Antrieb mindestens 500 ms spannungslos sein! Verwenden sie immer Originalschalter.
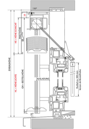
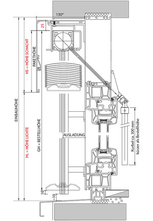
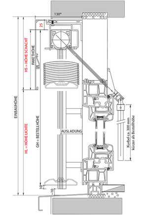
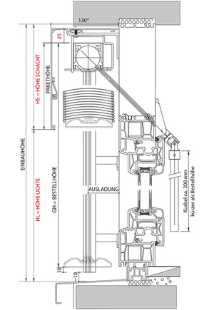
Platzbedarf im Sturz für SUPER 80 AT
TN - Tiefe Nische: 120 mm plus allfälliger Zuschlag für vorstehende Türgriffe, Wetterschenkel oder Insektenschutzelemente.
HS - Höhe Sturz: laut unterstehender Tabellen, Maße in mm
HL - Höhe im Licht: laut unterstehender Tabellen, Maße in mm
| HL=Höhe Lichte in mm | 440 - 1200 | 1201 - 1400 | 1401 - 1600 | 1601 - 1800 | 1801 - 2000 | 2001 - 2200 | 2201 - 2400 | 2401 - 2600 | 2601 - 2800 | 2801 - 3000 |
|---|---|---|---|---|---|---|---|---|---|---|
| SUPER 80 AT | 180 | 190 | 200 | 220 | 230 | 245 | 260 | 270 | 280 | 290 |
Verkabeltes System Raffstore

Als Einzelsteuerung wird das Motorsteuergerät Smoove Uno IB+ mit neuem Design und sensitiver Bedienung verwendet. Bei dem Bedienfeld gibt es keine Tasten mehr durch das Außenmaß 50 x 50 mm können die Steuergeräte mit den aktuellen Rahmen aller Schalterhersteller mittels Zwischenring kombiniert werden. Die Steuergeräte und Originalrahmen gibt es in verschiedenen Farben.
Als Zentrale ist ein kombinierter Sonnen- und Windsensor Soliris IB optimal, dieser kann optional mit einer Zeitschaltuhr Chronis IB kombiniert werden, um auch die Sichtschutzfunktion Abends herstellen zu können.
Bei der Zentralfunktion müssen die Steuergeräte untereinander mit einer Steuerleitung verbunden werden. Die Steuergeräte benötigen eine 230 V Zuleitung und zu den Antrieben ist eine vieradrige, flexible Leitung für mindestens mittlere mechanische Beanspruchung vorzusehen.
Steuerung verkabeltes System
Für jede Art von außenliegendem Sonnenschutz kann mit dem Somfy IB oder IB+ System die richtige Ansteuerungsmöglichkeit hergestellt werden.
Für Raffstore z.B. eine einstellbare Windüberwachung mit Sonnensensor oder für Rollläden zentral eine Zeitfunktion. Für mehrere Anlagen oder einen Wintergarten gibt es zusätzlich die Meteolis Steuerung, bei dieser am Touch-Display bis zu 16 Antriebe verwaltet werden und ein Sensor kann Temperatur, Windgeschwindigkeit, Regen und 3 Sonnenwerte (Himmelsrichtungen) verwalten. Mit der Steuerung können die unterschiedlichsten Produkte wie Fenster, Rollläden, Raffstore, Markisen, Rollos, Lüftung und Heizung kombiniert werden.



Beispiel Zentralsteuerung eines verkabelten Systems für Raffstore

Funksystem RTS Raffstore

Mittels Funkempfänger Modulis Slim Receiver RTS, der zwischen der 230 V Zuleitung und dem Jalousieantrieb montiert ist, kann die Ansteuerung flexibel über Hand- oder Wandsender erfolgen. Zusätzlich können Wind, Sonne/Wind, Sonnensensoren und Zeitschaltuhren flexibel eingelernt und auch nachträglich umprogrammiert werden. Durch diese Flexibilität werden Funksysteme nicht nur in der Sanierung sondern auch im Neubau immer häufiger. Die Antriebe benötigen eine 230 V Zuleitung, es ist eine dreiadrige flexible Leitung für mindestens mittlere mechanische Beanspruchung vorzusehen, die mittels Hirschmannsteckverbindung angeschlossen wird.
Steuerung Funksystem RTS
Mittels externer oder in den Antrieben integrierter Funkempfänger reicht eine batteriebetriebene Sendeeinheit aus um den Sonnenschutz zu steuern. Es ist lediglich eine 230 V Zuleitung herzustellen. Es steht eine große Auswahl an verschiedenen Senderfunktionen und Designs zur Verfügung.
Funktionen:
Zeitschaltuhren, verschiedene Arten von Sonnensensoren, Windsensor, kombinierter Sonnen- und Windsensor, externe Sender, universale Empfänger, Empfänger mit denen Licht geschalten werden kann, Zwischenstecker für die Steckdose und Funkempfänger für Heizstrahler. Es gibt somit fast keine Anwendung, die nicht mittels Funkempfänger in das RTS-System eingebunden werden kann.
Funksystem IO Homecontrol für Raffstore

Bei diesem Funksystem sind die Empfänger in den Antrieben integriert dies ermöglicht eine Rückmeldung über Status und Position. IO Homecontrol wird gemeinsam von mehreren Herstellern verschiedenster Haustechnikprodukte hergestellt und somit kann mit den Sendern oder der App für Smartphones „das ganze Haus“ gesteuert werden. Die Antriebe benötigen eine 230 V Zuleitung es ist eine dreiadrige flexible Leitung für mindestens mittlere mechanische Beanspruchung vorzusehen die mittels Hirschmannsteckverbindung angeschlossen wird.
Steuerung Funksystem IO
Mittels externer oder in den Antrieben integrierter Funkempfänger reicht eine batteriebetriebene Sendeeinheit aus um den Sonnenschutz zu steuern. Es ist lediglich eine 230V Zuleitung herzustellen. Es steht eine große Auswahl an verschiedenen Senderfunktionen und Designs zur Verfügung.
Der Unterschied zum RTS-System liegt darin dass bei IO-Homecontrol zusätzlich zu dem Komfort des Funks eine Rückmeldung über den Status des Produktes erfolgt. Das System ermöglicht auch eine Anbindung an das Internet und kann über Smartphones und übers Internet Fern- bedient, kontrolliert und gewartet werden.
Funktionen:
Zeitschaltuhren, verschiedene Arten von Sonnensensoren, Windsensor, kombinierter Sonnen und Windsensor, externe Sender, universale Empfänger, Empfänger mit denen Licht geschalten werden kann, Zwischenstecker für die Steckdose und Funkempfänger für Heizstrahler. Es gibt somit fast keine Anwendung die nicht mittels Funkempfänger in das IO-System eingebunden werden kann.
Zusatzfunktionen:
Überwachungskameras, Einbruchsmeldung und diverse Sicherheitsfunktionen.














































